Zusatzmodul für die automatisierte Erstellung von ein- und allpoligen Verteilerplänen
Wenn du häufig Verteilerpläne in einpoliger oder allpoliger Darstellung erstellen musst, dann ist dieses Zusatzmodul genau das Richtige für dich. Der Verteilerplan-Assistent ermöglicht die automatisierte Erstellung von Verteilerplänen auf Basis eines mit Treesoft CAD projektierten Elektroinstallationsplanes. Auch ohne Elektroinstallationsplan generierst du deine Verteilerpläne schnell und einfach mit den Assistentenfunktionen.
In diesem Video zeigen wir die automatisierte einpolige oder allpolige Verteilerplan-Erstellung.
Funktionsübersicht
Der Verteilerplan-Assistent bietet vielfältige Funktionen zum Anpassen des strukturellen Aufbaus deines Verteilerplans. Die Bearbeitung erfolgt hierbei in einer übersichtlichen Listenform. Der Verteilerplan-Assistent generiert anschließend, entsprechend der in der Liste vorgegebenen Struktur, auf Knopfdruck den dazugehörigen Verteilerplan. Auf Wunsch erfolgt hierbei automatisch eine Artikelzuordnung und Beschriftung mit den technischen Daten der einzelnen Symbole. Unterschiedliche Konfigurationen eines Verteilerplans lassen sich speichern und auf Wunsch im Microsoft Excel-Format exportieren. Die automatische Erstellung und Beschriftung des Verteilerplans lässt sich über vielfältige Einstellungen individuell anpassen.
Automatisches Generieren von Verteilerplänen aus einem mit Treesoft CAD Gebäudetechnik erstellten Elektroinstallationsplan
Automatisches Generieren von Verteilerplänen aus einer Liste mit vielen nützlichen Automatikfunktionen
Einpolige und allpolige Darstellung des Verteilerplans
Globale Artikelzuordnung und automatische Erstellung von Stücklisten und Klemmenplänen
Einlesen von Stromkreislisten über Microsoft Excel- oder CSV-Importschnittstellen
In Treesoft CAD arbeitest du projektbezogen. Nach der Auswahl eines bestehenden Projektes bzw. der Anlage eines neuen Projektes speichert die Software alle dazugehörigen Zeichnungsdateien, wie beispielsweise Elektroinstallationsplan, Verteilerplan, Stückliste, usw. automatisch in dem dazugehörigen Projektverzeichnis.
Öffne das Projekt und wechsle in dem Dokumentenfenster auf die Registerkarte CAD. Wenn du das Projekt neu angelegt hast, tätige einen Doppelklick auf „CAD Dokumentenverzeichnis anlegen“
Zum Anlegen eines neuen Verteilerplans führe einen Doppelklick aus, der Verteilerplan-Assistent öffnet sich und legt eine neue Verteilerplan-Konfiguration an.
Nach dem Start des Verteilerplan-Assistenten siehst du am unteren Bildschirmrand den Verteilerplan-Editor. In diesem stehen dir zum Anlegen und Bearbeiten von Verteilerplan-Konfigurationen leistungsfähige Funktionen zur Verfügung, wie das Anlegen neuer Unterprojekte.
Der Verteilerplan-Editor fügt entsprechend der vorgenommenen Einstellungen zu der gewählten Unterverteilung Strompfade ein und zählt die Stromkreis- und Positionsnummern der einzelnen Abgänge selbstständig hoch.
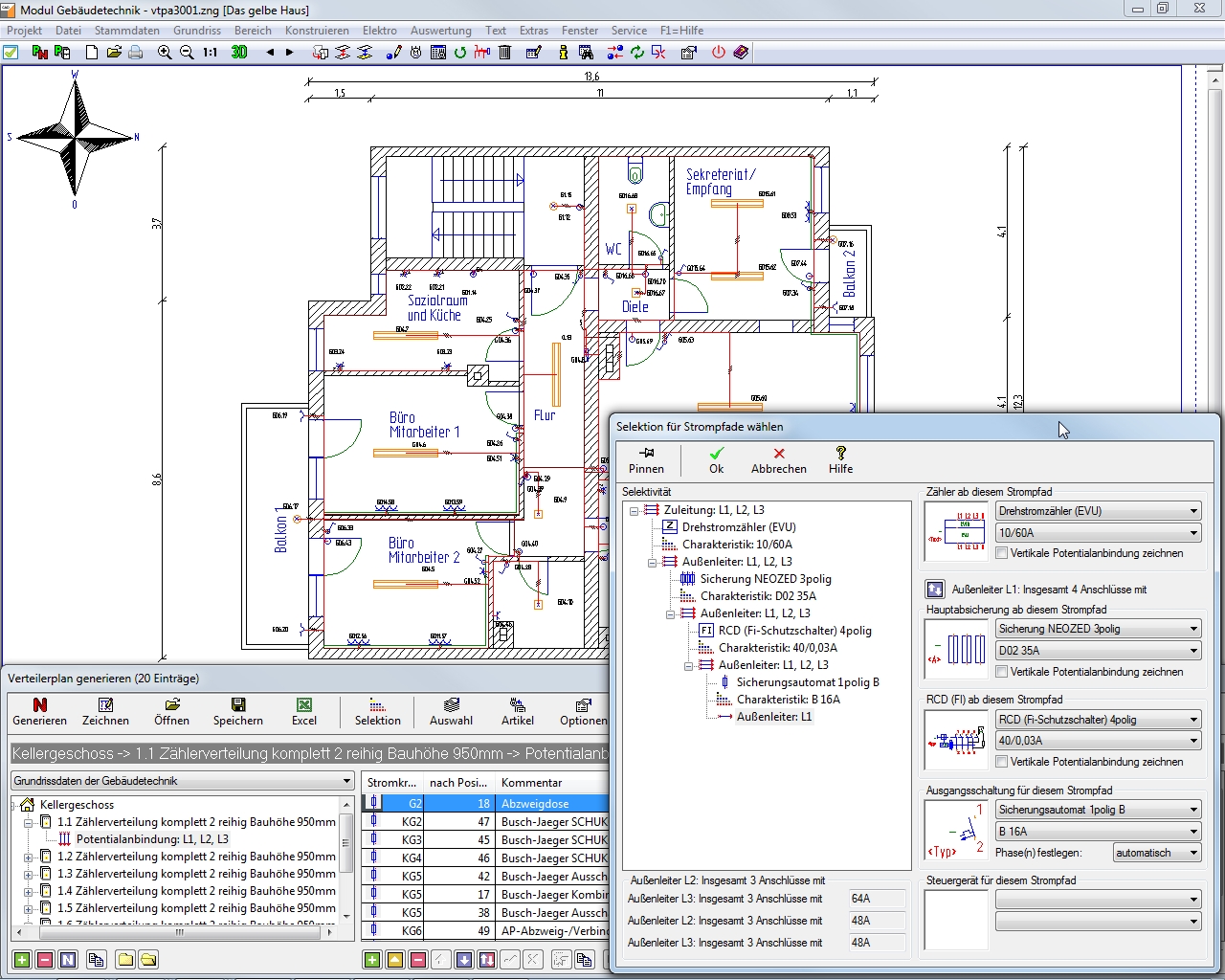
Über die Selektion legst du den Aufbau und die Anbindung der einzelnen Abgänge fest. Die vorgenommenen Einstellungen beziehen sich immer auf den in der Liste markierten Abgang.
Der Verteilerplan-Assistent ermöglicht dir, die in dem Verteilerplan-Editor vorgenommene Konfiguration zu speichern und diese somit zu einem späteren Zeitpunkt wieder zu laden. Die Software speichert die Konfiguration in dem dazugehörigen Projektverzeichnis ab.
Entsprechend der in dem Verteilerplan-Editor angelegten Konfiguration erstellt der Verteilerplan-Assistent den dazugehörigen Verteilerplan wahlweise in einpoliger oder allpoliger Darstellung. Die Erstellung von Verteilerplänen lässt sich durch vielfältige Einstellungsmöglichkeiten individuell an deine betrieblichen Anforderungen anpassen.
Betätige zum Erstellen des Verteilerplanes in dem Verteilerplan-Editor die Schaltfläche „Generieren“. Die Software wechselt vom Verteilerplan-Assistenten in den Schaltplan-Assistenten und erstellt auf Basis der vor dir vorgenommenen Verteilerplan-Konfiguration den Verteilerplan. In dem Schaltplan-Assistenten nimmst du auch gegebenenfalls eine manuelle Bearbeitung und/oder Ergänzung des automatisch generierten Verteilerplanes vor.
Der erneute Aufruf des Verteilerplan-Assistenten kann entweder direkt über die Assistentenauswahl (Taste [F3] oder über das Menü „Hauptkreise“ mit dem Befehl „Verteilerpläne bearbeiten“ erfolgen.
Öffne den Verteilerplan-Assistenten und rufe den Verteilerplan-Editor auf. Rufe im Optionen-Dialog die Schaltfläche „Darstellungen“ auf. Hier kannst du die Darstellung der Strompfade entsprechend anpassen und zwischen der einpoligen und allpoligen, sprich aufgelösten, Darstellung wechseln.
Wenn du die Darstellung gewechselt hast, ist der Verteilerplan neu zu generieren. Wähle zum Anlegen einer neuen Datei die Option „Neue Datei“ und gebe in dem Feld Kommentar einen kurzen beschreibenden Text ein.
Bei der manuellen zeichnerischen Erstellung eines Verteilerplanes bedeutet die Bearbeitung, beispielsweise das Einfügen eines weiteren Abgangs, einigen Arbeitsaufwand. Mit dem Verteilerplan-Assistenten ist dies jedoch problemlos möglich.
Weil die Bearbeitung des Verteilerplanes in Listenform erfolgt, lässt sich beispielsweise sehr einfach und schnell ein Abgang einfügen. Die nachfolgenden Abgänge werden hierbei vollautomatisch „verschoben“ und der Verteilerplan entsprechend angepasst. Beim anschließenden Neugenerieren des Verteilerplanes übernimmt der Verteilerplan-Assistent selbstständig die vorgenommenen Änderungen. Einfacher geht das nun wirklich nicht mehr!
Selbstverständlich kannst du den automatisch über den Verteilerplan-Assistenten generierten Verteilerplan anschließend auch manuell weiter bearbeiten, diesen ergänzen und auch auswerten. Dies erfolgt in dem Schaltplan-Assistententen. Beachte dabei aber bitte, dass manuell vorgenommene Änderungen und Ergänzungen an einem Verteilerplan bei einer eventuellen anschließenden Neugenerierung über den Verteilerplan-Assistenten verloren gehen würden, wenn du die bestehende Datei überschreibst. Standardmäßig legt die Software bei der Erstellung eines Verteilerplanes jedoch immer eine neue Datei, beispielsweise vtpa1002.zng, an.