Treesoft CAD Konverter PDF/DXF/DWG
Die Broschüre beschreibt, wie du Grundrisse, die dir als PDF-, DWG- oder DXF-Datei zur Verfügung gestellt wurden, auf Knopfdruck in eine Treesoft CAD ZNG-Datei (Zeichnungsdatei) konvertierst. Die erstellten Grundrisse mit Elektroinstallation kannst du anschließend wieder mit dem Bidirektional-Modul in eine DXF-/DWG-Datei zurückkonvertieren.

Importieren, Konvertieren, Bearbeiten und Exportieren von PDF-, DXF-, DWG- und ZNG-Zeichnungsdateien
In der Regel sind in einer PDF-/DWG-/DXF-Datei die Grundrisse nebeneinander angeordnet. Wenn du mit dem Treesoft CAD Konverter diese Grundrisse in eine Treesoft CAD Gebäudetechnik ZNG-Datei konvertierst, wird aus jedem Grundriss eine Hintergrundzeichnung (Vektorgrafik) generiert. Alle Objekte zu einem Grundriss werden dabei auf der Ebene «Grafische Elemente» abgelegt. Dabei musst du nur die Objekte übernehmen, die du für die Konstruktion der Elektroinstallation benötigst. Auf Wunsch kannst du alles, was du nicht benötigst, löschen.
In Treesoft CAD erstellst du dann die Elektroinstallationen. Selbstverständlich kannst du anschließend die fertigen Grundrisszeichnungen mit dem Treesoft CAD Konverter wieder in allen Formaten (DWG/DXF) speichern, für die du die entsprechenden Module gekauft hast. Dabei generierst du aus jedem Grundriss mit Elektroinstallation eine Datei.
Weitere Seiten
Vorteile des Treesoft CAD Konverters
Bereits die Übernahme eines gescannten Grundrissplanes stellt eine schnelle und qualitativ gute Alternative zur zeichnerischen Erstellung eines Grundrisses dar. Der entscheidende Vorteil des Treesoft CAD Konverters gegenüber einem gescannten Plan sind:
- Die vollen Funktionalitäten beim Zeichnen, wie beispielsweise der Objektfang, sind verfügbar.
- Durch die Layertechnolgie des CAD Konverters lassen sich gespeicherte Elemente einer CAD-Zeichnung in beliebiger Kombination sichtbar bzw. unsichtbar schalten. Dies erleichtert besonders in komplexen CAD-Zeichnungen die Übersichtlichkeit.

Funktionsübersicht der Module
Der Treesoft CAD Konverter ist modular aufgebaut. Damit haben wir die Möglichkeit, dir genau das verkaufen zu können, was du wirklich benötigst, nicht mehr und nicht weniger. Unserer offenen Informationspolitik folgend, benennen wir in unserer Preisliste die Preise zu den einzelnen Modulen. Neben den aufgelisteten Einzelpreisen bieten wir dir zudem unterschiedliche Pakete zu deutlich günstigeren Preisen an.
Mit den Treesoft CAD Konverter-Modulen und den darin implementierten Funktionen lassen sich alle Aufgabenstellungen lösen, die sich aus den nachfolgend beschriebenen Gegebenheiten ergeben.
- DXF- und DWG-Import/Export
- Intelligenter PDF-Import
- Bildimport-Modul
- Bidirektional-Modul
- Stapelverarbeitung-Modul
Der Treesoft CAD Konverter und zwei Module sind im Starterpaket Gebäudetechnik für das Elektrohandwerk und im Starterpaket Steuerungstechnik für die Instandhaltung enthalten.
DXF-Import/Export + DWG-Import/Export
DXF-Dateien lassen sich aus ziemlich jedem am Markt befindlichen CAD Programm erzeugen. Leider werden dabei oft die seitens Autodesk bestimmten Vorgaben nicht eingehalten.
DWG-Dateien lassen sich inzwischen auch schon aus sehr vielen CAD-Programmen erzeugen. Hier müssen die seitens Autodesk bestimmten Vorgaben eingehalten werden, da ansonsten eine solche Datei überhaupt nicht zu öffnen wäre.
Wenn dir beide Formate zur Verfügung gestellt werden, dann empfehlen wir die Verwendung der DWG-Datei.
Mit jeder neuen AutoCAD® Version ändern sich auch die Vorgaben. Aufgrund der von uns verwendeten Teigha® Bibliothek können wir aktuell alle AutoCAD® Formate lesen und schreiben und sogar zwischen den Formaten konvertieren. Damit ist sichergestellt, dass du bei einer Ausschreibung immer in dem ausgeschriebenen Format liefern kannst.

Unterstützte Formate
Bidirektional-Modul
Wenn du den ursprünglichen Aufbau der PDF-/DWG-/DXF-Datei erhalten willst, um diese an den Datenlieferanten wieder zurückzuliefern, dann ist das Bidirektional-Modul die Lösung. Es erweitert den Treesoft CAD Konverter um einen bidirektionalen Datenaustausch.
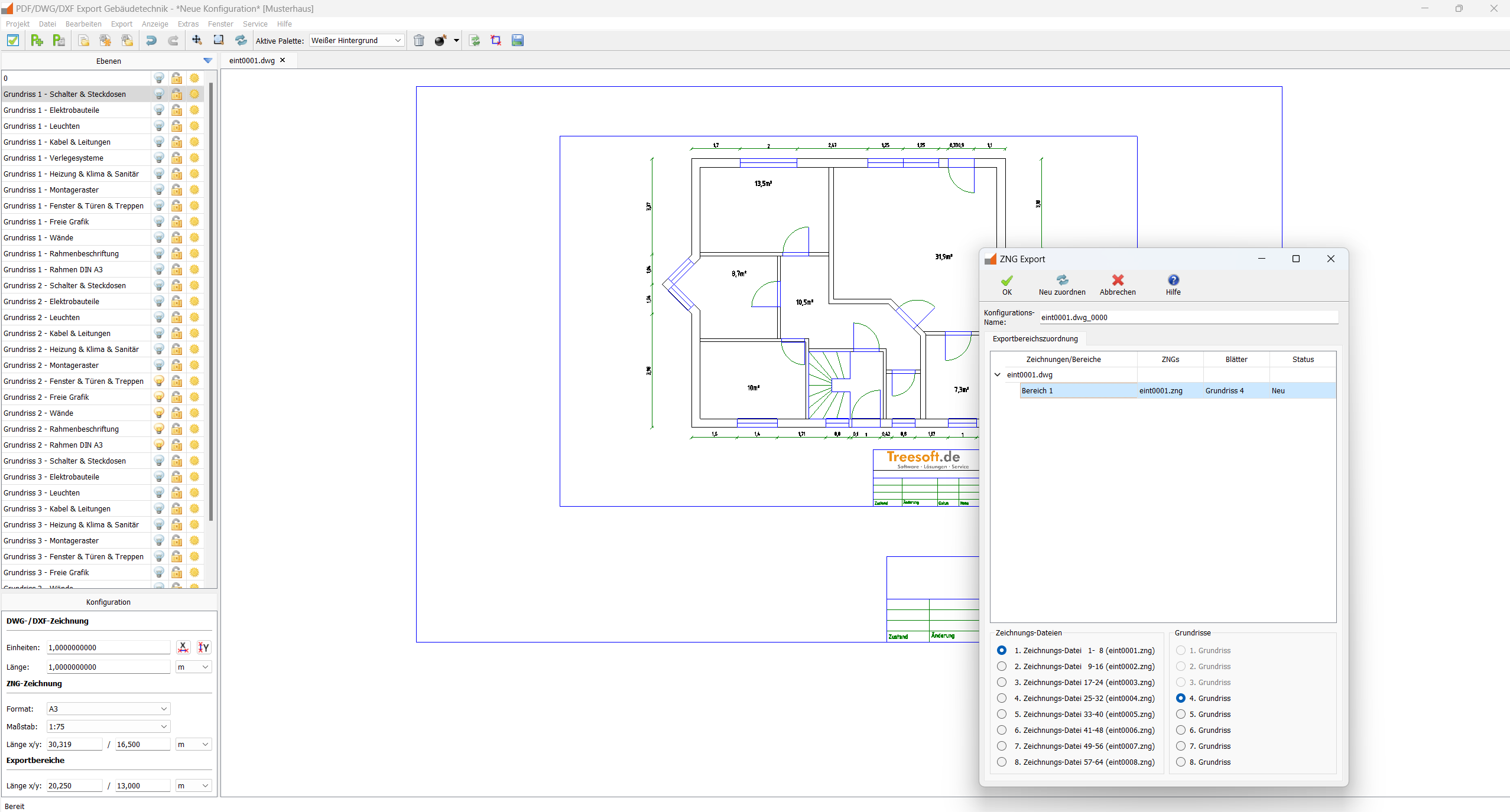
Das Bidirektional-Modul erzeugt bei der Konvertierung der Grundrisse in eine Treesoft CAD Grundrissdatei automatisch eine Konfigurationsdatei. In dieser Datei sind alle Koordinaten, Blattformate, Maßstäbe und Skalierungen und ein Referenzpunkt zu jedem Grundriss gespeichert. Zudem wird automatisch eine Kopie der Original-Datei erstellt.
Nachdem du dann die Projektierung der Elektroinstallationen zu den einzelnen Grundrissen in Treesoft CAD Gebäudetechnik durchgeführt haben, kannst du diese auf Knopfdruck in die original DWG-/DXF-Datei zurückschreiben. Die Hintergrundzeichnungen werden dabei nicht zurückgeschrieben. Der Datenlieferant bekommt damit die gelieferte DWG-/DXF-Datei im Originalzustand zurück, wobei die Elektroinstallationen auf angehangenen Ebenen (Layern) abgelegt werden. Besser geht’s nicht!

Schlussatz
Wie du siehst, lassen sich alle Aufgaben mit dem Treesoft CAD Konverter und den Funktionen in den entsprechenden Modulen einfach, schnell und rationell lösen.
Arbeiten mit dem Treesoft CAD Konverter
Im Folgenden möchten wir dir einen Eindruck davon vermitteln, wie du mit dem Treesoft CAD Konverter arbeitest. Wir beschreiben hier alle notwendigen Schritte, um Grundrisse aus einer PDF-/DWG-/DXF-Datei in eine Treesoft CAD Gebäudetechnikzeichnung zu konvertieren und anschließend wieder als DWG-/DXF-Datei zu speichern oder die erstellte Elektroinstallation wieder in die originale DWG-/DXF-Datei zurückzuschreiben.
Video – Funktionsdemonstration Treesoft CAD Konverter
Anhand einer von Kundenseite bereitgestellten DWG-Zeichnung demonstrieren wir den bidirektionalen Datenaustausch zwischen Architekt und Elektroplaner.
Treesoft ZNG-Datei (Zeichnungsdatei)
In Treesoft CAD Gebäudetechnik ist eine automatische Ebenenverwaltung implementiert. Ein mit Treesoft CAD Gebäudetechnik erstellter Grundriss und die dazu erstellte Elektroinstallation werden automatisch auf insgesamt 10 Ebenen verteilt.

Grundrisse in einer ZNG-Datei
In einer ZNG-Datei (Zeichnungsdatei) kannst du bis zu 8 Grundrisse erstellen. In einem Projekt werden 8 Dateien verwaltet. Hieraus ergeben sich 64 Grundrisse (Stockwerke).
Im Treesoft CAD werden demnach die Grundrisse (Stockwerke) übereinander gezeichnet. Über den Befehl «Grundriss wählen» wählst du einfach den gewünschten Grundriss, und Treesoft CAD schaltet dann automatisch die dem Grundriss zugehörigen 10 Ebenen sichtbar, entsprechend den von dir vorgenommenen Einstellungen. Der Zeichnungsrahmen ist auf einer separaten Ebene gespeichert und wird auf Wunsch dazu eingeblendet.
Das Treesoft CAD ZNG-Format kennt aktuell die Objekte Punkte, Linien, Kreise, Rechtecke, Texte, Kreisbögen, Symbole, Symboldefinitionen und Bitmaps. Alle in einer Symboldefinition (Blockkopf) gespeicherten Objekte werden zu der im Symbol gespeicherten Ebene (Layer) abgelegt.


DXF-/DWG-Datei
Die Entwicklung des DWG- und DXF-Formats wird von Autodesk als Entwickler des CAD-Programms AutoCAD® bestimmt. Mit jeder neuen AutoCAD-Version kann eine neue, erweiterte DWG- und DXF-Version vorliegen. DXF wird dabei stets nur erweitert, es werden keine Elemente aus dem Standard entfernt.
Die zu AutoCAD® entwickelten Dateiformate DWG und DXF bilden einen Industriestandard zum Austausch von CAD-Daten. Laut Autodesk wurden seit der Erfindung des DWG-Formates rund drei Milliarden Dateien in diesem Format erstellt, davon wurden im Jahr 2006 eine Milliarde aktiv bearbeitet.
In AutoCAD® Architecture werden die Grundrisse nebeneinander dargestellt. Wählt der Benutzer hier einen Grundriss, dann wird die Zeichnung vergrößert (Zoom) und das Bildschirmfenster so positioniert, dass nur noch der gewünschte Grundriss zu sehen ist. Die Ebenen (Layers) sind hier nicht statisch, sondern vom Benutzer selbst zu verwalten. Die meisten am Markt befindlichen Architektur-CAD-Programme orientieren sich an diesem Verfahren und arbeiten genauso oder sehr ähnlich.
Das AutoCAD® DWG-Format kennt auch komplexe Objekte wie z.B. Polylinien oder Bézierkurven. Alle in einem Blockkopf (Symboldefinition) gespeicherten Objekte werden auf den dazu in der Symboldefinition gespeicherten Layern (Ebenen) abgelegt.
Autodesk und AutoCAD® sind eingetragene Warenzeichen oder Warenzeichen von Autodesk, Inc. und/oder seinen Niederlassungen und/oder Partnern in den USA und/oder anderen Ländern.
Treesoft CAD
kostenlos testen
Fragen?
Wir helfen gerne!
+49 2266 4763-800
sales@treesoft.de
