Treesoft CAD Konverter Bildimport-Modul
Zusatzmodul zum Importieren von Rastergrafiken für die Bearbeitung / Revision im Elektrocad-System
Willst du vorhandene Pläne digitalisieren und archivieren und suchst nach einer Möglichkeit, kleinere Änderungen an den gescannten Stromlaufplänen vorzunehmen? Oder willst du die Architekten-Zeichnungen einlesen, um dann die Elektroinstallation einzuzeichnen? Dann ist dieses Zusatzmodul genau das Richtige.
Über das Bildimport-Modul hast du die Möglichkeit, die Bilder gescannter Schaltpläne oder Grundrisse im Treesoft CAD Konverter, als Einzel- oder Stapelimport zu öffnen und maßstabsgerecht zu skalieren. Dann sind diese in eine Treesoft ZNG-Datei als Hintergrundbild (Rastergrafik) zu konvertieren. Anschließend kannst du diese grafisch in Treesoft CAD bearbeiten, mit Symbolen ergänzen und dauerhaft archivieren. So wird die Revision alter Pläne zum reinen Vergnügen.
Bildergalerie: Treesoft CAD Konverter Bildimport-Modul




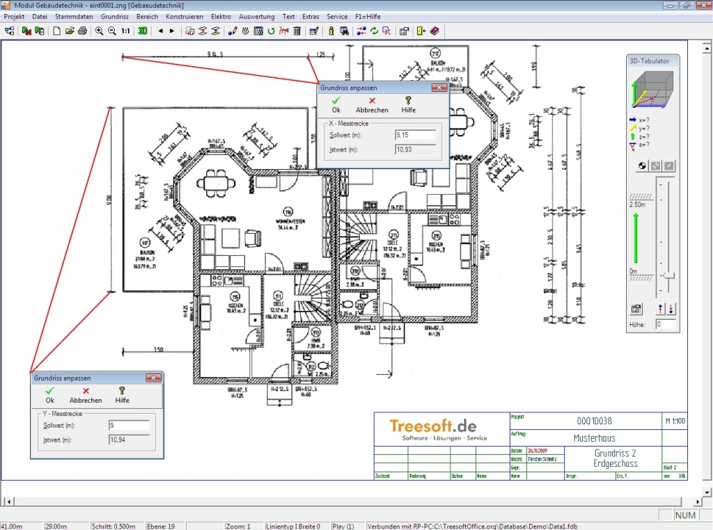
Skalierung bestimmen
Wenn du ein Bild von einem Grundriss importierst, musst du vor der Bearbeitung ein Referenzmaß bestimmen. Suche dir eine bekannte Bemaßung im Bild und betätige die Skalierungsfunktion, um dann mit einem Mausklick zwei Messpunkte zu positionieren.
Die folgenden Formate werden unterstützt:
- JPEG, PNG, MNG, BMP, GIF, ICO, TIFF
In Abhängigkeit vom installierten Betriebssystem und der darin installierten Plug-ins werden auch noch die folgenden Formate unterstützt:
- svgz (komprimierte SVG Datei)
- mng (Multiple-Image Network Graphics)
- pbm (Portable Graymap)
- pgm (Portable Bitmap)
- ppm (Portable Pixmap)
- tga (Targa Image File)
- xbm (X BitMap)
- xpm (X PixMap)
Welche Formate das bei dir sind, siehst du im «Datei öffnen» Dialog.
Treesoft CAD
kostenlos testen
Fragen?
Wir helfen gerne!
+49 2266 4763-800
sales@treesoft.de