Bauteilkatalog PILZ Steuerungstechnik
Projektierung von PILZ Baugruppen für die Steuerungstechnik
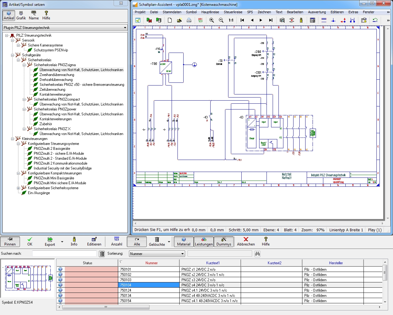
Anwendungsbeispiel


Dokumentation
Auflistung der enthaltenen PILZ-Baugruppen
- Sensorik
– Sichere Kamerasysteme
– Schutzsystem PSENvip - Schaltgeräte
– Sicherheitsrelais
– Sicherheitsrelais PNOZsigma
– Überwachung von Not-Halt, Schutztüren, Lichtschranken
– Zweihandüberwachung
– Drehzahlüberwachung
– Sicherheitsrelais PNOZ s50 – sichere Bremsenansteuerung
– Zeitüberwachung
– Kontakterweiterungen
– Sicherheitsrelais PNOZcompact
– Überwachung von Not-Halt, Schutztüren, Lichtschranken
– Sicherheitsrelais PNOZpower
– Überwachung von Not-Halt, Schutztüren, Lichtschranken
– Kontakterweiterungen
– Zubehör
– Sicherheitsrelais PNOZ X
– Überwachung von Not-Halt, Schutztüren, Lichtschranken - Kleinsteuerungen
– Konfigurierbare Steuerungssysteme
– PNOZmulti 2 Basisgeräte
– PNOZmulti 2 – sichere E/A-Module
– PNOZmulti 2 – Standard E/A-Module
– PNOZmulti 2 Kommunikationsmodule
– Industrial Security mit der SecurityBridge
– Konfigurierbare Kompaktsteuerungen
– PNOZmulti Mini Basisgeräte
– PNOZmulti Mini sichere E/A-Module
– Konfigurierbare Sicherheitssysteme
– PNOZmulti Basisgeräte
– PNOZmulti sichere E/A-Module
– Zubehör PNOZmulti - Ein-/Ausgänge
Weitere Beiteilkataloge und Symbolbibliotheken
Bauteilkatalog PILZ Steuerungstechnik
Projektierung von PILZ Baugruppen für die Steuerungstechnik (Sensorik, Schaltgeräte, Kleinsteuerungen)
Mehr lesenBauteilkatalog PULS Stromversorgungen
Projektierung von PULS Stromversorgungen (Hutschienen-Netzteile mit Symbolen für den Schaltplan sowie Ansichten für den Schaltschrank)
Mehr lesenSymbolbibliothek Photovoltaik
Mit der Treesoft CAD Symbolbibliothek Photovoltaik planst du Photovoltaik-Anlagen deiner Kunden. Die Bibliothkek umfasst alle relevanten Symbole, wie Wechselrichter und Solarmodule
Mehr lesenSymbolbibliothek Pneumatik
Normgerechte Erstellung von Pneumatikplänen / Fluidplänen
Mehr lesenSymbolbibliothek Hydraulik
Normgerechte Erstellung von Hydraulikplänen / Fluidplänen
Mehr lesenTreesoft CAD
kostenlos testen
Fragen?
Wir helfen gerne!
+49 2266 4763-800
sales@treesoft.de